
Groupe scolaire
Marly
Sujet La réunion de deux écoles de quartier, une école maternelle et une école primaire. Ça sera donc une école dans les arbres.
SITE Situé à l’une des entrées de la ville, le terrain est occupé par une maison de maitre en péril et son parc arboré.
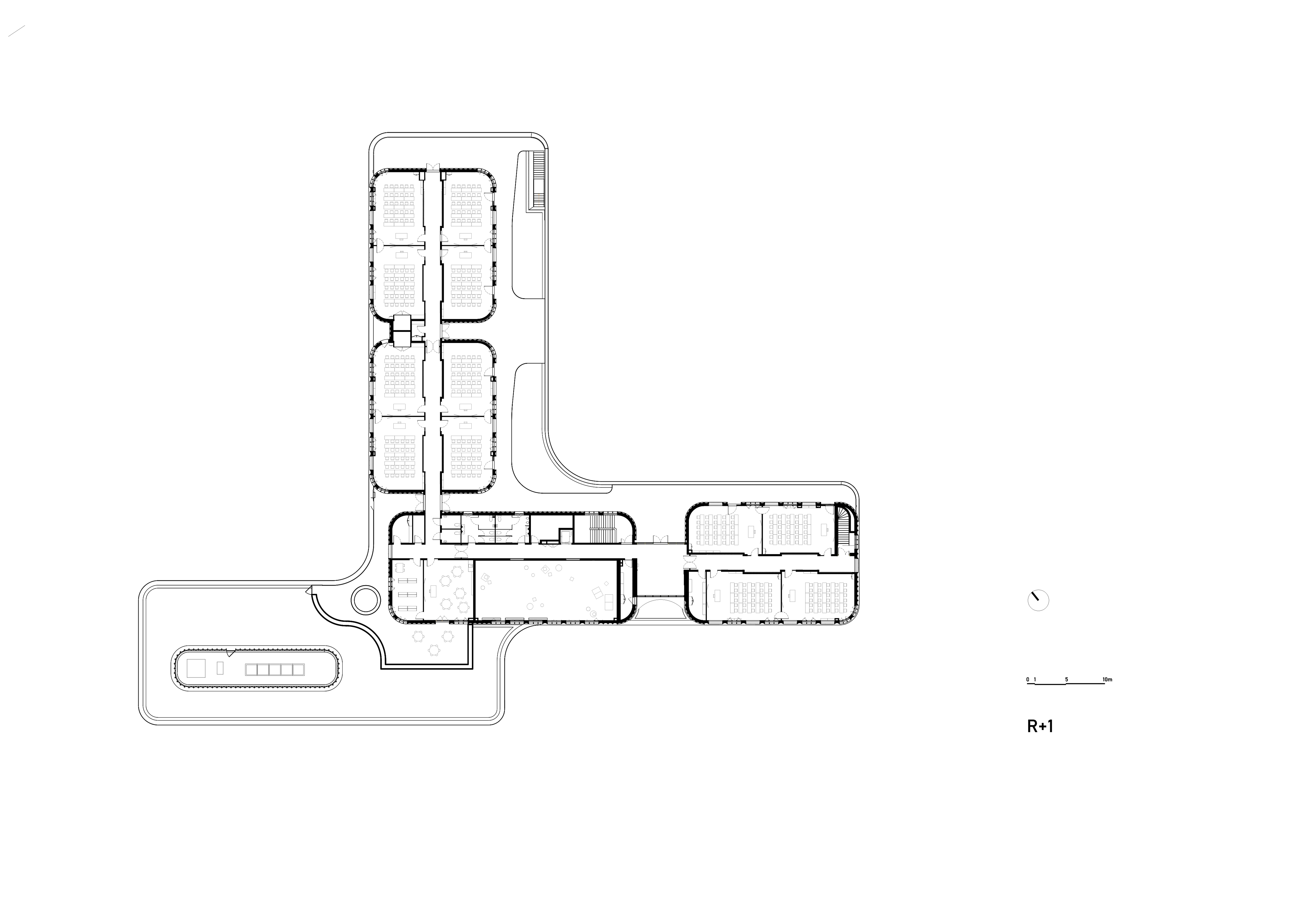
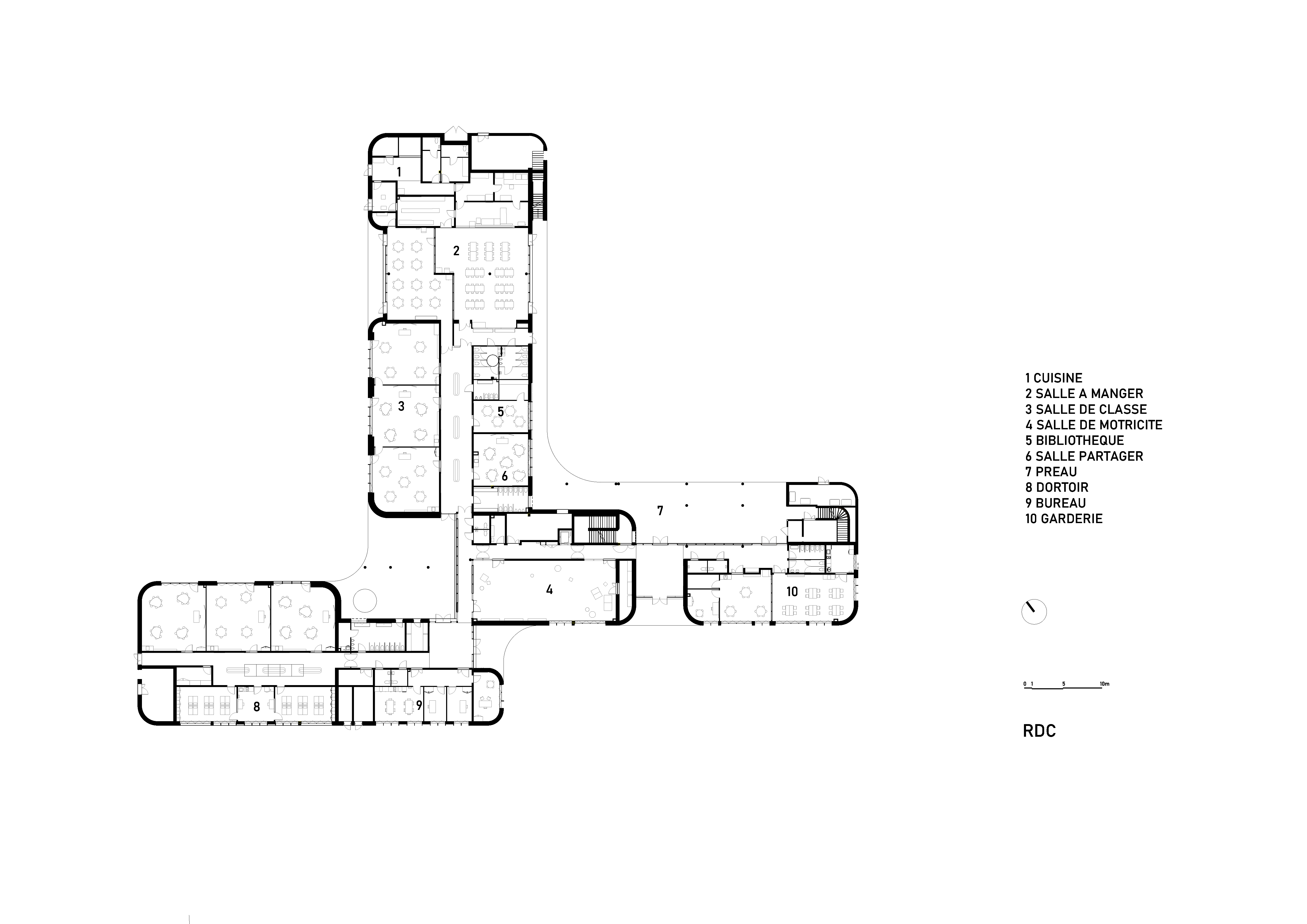
GEOMETRIE Le projet se compose de deux niveaux, un socle en béton et un attique en bois. Le premier niveau habillé de brique dessine et affirme l’alignement avec le futur mail planté. Ses angles sont adoucis par des courbes pleines. Le socle s’enroule autour de la cour de l’école maternelle à l’ouest de la parcelle. En intrados, directement connectées à la cour, se situent l’ensemble des classes maternelles. En extrados, ouvertes sur l’espace public se situent les autres locaux nécessaires au fonctionnement de l’école. Sa toiture végétalisée est foisonnante. Elle forme un deuxième niveau de sol sur lequel vient se poser l’attique.
Ce deuxième niveau s’enroule autour de la cour de récréation de l’école élémentaire à l’est de la parcelle. L’ensemble des classes de l’école élémentaire y prend place. La structure et les façades de cet attique sont en bois. Tel des grands pavillons, il est découpé en quatre volumes grâce à des courbes en creux qui apportent de la lumière dans les circulations. Fonctionnant en miroir du socle, la vêture de cet attique est composée de panneaux cintrés en courbes creuses rythmés selon une trame serrée.
MATERIALITE Le projet fait le choix d’une double matérialité. Un socle en béton avec un parement minéral en brique, une matérialité robuste à la rencontre de l’espace public. Un attique avec une structure et des façades bois, et un isolant en fibre de bois, la structure légère affirme l’image de l’école dans les arbres.
GEOMETRIE Le projet se compose de deux niveaux, un socle en béton et un attique en bois. Le premier niveau habillé de brique dessine et affirme l’alignement avec le futur mail planté. Ses angles sont adoucis par des courbes pleines. Le socle s’enroule autour de la cour de l’école maternelle à l’ouest de la parcelle. En intrados, directement connectées à la cour, se situent l’ensemble des classes maternelles. En extrados, ouvertes sur l’espace public se situent les autres locaux nécessaires au fonctionnement de l’école. Sa toiture végétalisée est foisonnante. Elle forme un deuxième niveau de sol sur lequel vient se poser l’attique.
Ce deuxième niveau s’enroule autour de la cour de récréation de l’école élémentaire à l’est de la parcelle. L’ensemble des classes de l’école élémentaire y prend place. La structure et les façades de cet attique sont en bois. Tel des grands pavillons, il est découpé en quatre volumes grâce à des courbes en creux qui apportent de la lumière dans les circulations. Fonctionnant en miroir du socle, la vêture de cet attique est composée de panneaux cintrés en courbes creuses rythmés selon une trame serrée.
MATERIALITE Le projet fait le choix d’une double matérialité. Un socle en béton avec un parement minéral en brique, une matérialité robuste à la rencontre de l’espace public. Un attique avec une structure et des façades bois, et un isolant en fibre de bois, la structure légère affirme l’image de l’école dans les arbres.
Livré en Juillet 2025
Equipe : Bureau Face B, Archi5prod (Mandataire), Zb paysage, Ingerop, Bâtiment Nord, Alma Consulting
Budget : 10 113k € ht
Surface (sdp) : 3 183 m²
Performance energétique : E3C1
Photographies : Louis Duboys Fresney & Bureau Face B
Equipe : Bureau Face B, Archi5prod (Mandataire), Zb paysage, Ingerop, Bâtiment Nord, Alma Consulting
Budget : 10 113k € ht
Surface (sdp) : 3 183 m²
Performance energétique : E3C1
Photographies : Louis Duboys Fresney & Bureau Face B



